Bilocale in vendita

Flero, Via Teresio Olivelli
€ 189.000
2 locali 2 locali
66 Mq 66 Mq
1 bagno 1 bagno

Bilocale in vendita

Flero, Via Teresio Olivelli

Descrizione annuncio

COSA SAPERE SULLA CASA:

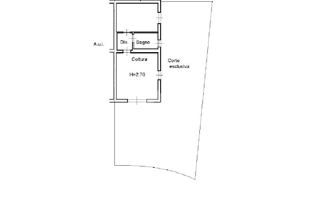
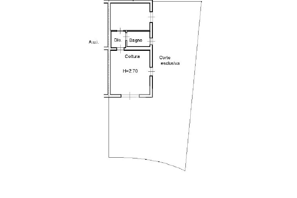
Flero - Bilocale - Piano Terra - Giardino - Box Singolo.

PARTICOLARITA' E DESCRIZIONE:

In contesto signorile vi presentiamo soluzione ad alto risparmio energetico, posto al piano terra completo di 120 mq di giardino privato.

Entrando dal cancellino pedonale, troviamo il vialetto che ci conduce al secondo cancellino d’ingresso, dove veniamo accolti dal generoso giardino dove è possibile ricreare un ulteriore spazio living all’aperto, ideale per momenti di convivio.

La porta blindata da accesso alla soluzione dove veniamo accolti dalla luminosa zona giorno open space con angolo cottura.

Il disimpegno che ci conduce alla zona notte, è dotato di attacchi della lavatrice, che ci permettono di adibire l’ambiente come angolo lavanderia e/o guardaroba.

La camera matrimoniale di 14 mq ha anch’essa accesso al giardino tramite porta finestra.

Serve il piano il bagno finestrato con box doccia.

A completare la soluzione il box singolo.

TECNOLOGIE:

Riscaldamento a pavimento;

Raffrescamento centralizzato;

Serramenti triplo vetro;

Impianto di irrigazione;

Impianto allarme.

UBICAZIONE E CONTESTO:

Questa abitazione è inserita all'interno di un contesto condominiale ed è soggetta a delle spese condominiali.

L'immobile è ubicato a pochi passi dal centro del paese.

Ricordiamo inoltre che il paese di Flero offre un servizio autobus il quale collega il comune con i paesi limitrofi ed il centro città.

E' possibile trovare più fermate autobus nel centro del paese ed alcune vicino ai supermercati.

Inoltre, il paese dispone di tutti i principali servizi di cui un cittadino necessita, come poste e banche.

In pieno centro storico possiamo trovare numerosi bar e botteghe, negozi di abbigliamento e farmacie.

Flero offre anche servizio scolastico, dall'asilo nido alle scuole elementari.

Affidarsi all'agenzia Tecnocasa significa rivolgere la propria scelta verso un servizio di qualità, svolto da consulenti esperti e preparati, in grado di offrire assistenza completa e altamente professionale. Il nostro punto di forza è lavorare su micro-zone, questo ci permette maggior conoscenza del territorio in cui operiamo.

I nostri servizi:

Consulenza per l'acquisto, la vendita, la locazione e la valutazione di immobili. Consulenza finanziaria specialistica - mutui casa, cessione del quinto, prestiti personali. I nostri consulenti Kiron sono convenzionati con i maggiori istituti del credito, lavorando a supporto dei clienti delle agenzie immobiliari.

Mostra tutto

Nelle vicinanze

Trasporto pubblico Trasporto pubblico
San Zeno-Folzano
San Zeno-Folzano
2,3 Km
Via XXV Aprile 114
Via XXV Aprile 114
220 m
Via XXV Aprile fronte 15
Via XXV Aprile fronte 15
290 m
Ricariche auto elettriche Ricariche auto elettriche
A2A Villaggio Sereno
2,9 Km
Scuole Scuole
Materna Comunale
400 m
Scuola Primaria
860 m
Scuola Secondaria di Primo Grado Emiliano Rinaldini
890 m
Scuola Secondaria di Primo Grado Nella Berther
2,5 Km
Scuola Primaria Angelo Canossi
2,6 Km
Farmacia Farmacia
Farmacia Comunale 03 Folzano
1,8 Km
Farmacia Saleri
2,0 Km
Farmacia Zampedri
2,6 Km
Farmacia Dott. Abbiati
2,7 Km
Farmacia Santa Rita
2,9 Km
Supermercati Supermercati
Conad
360 m
Family Market
660 m
MD
2,2 Km
Famila
2,6 Km
Bar Bar
Effebar
180 m
Bar 25010
2,8 Km
Bar La Piazzetta
2,8 Km
Ristoranti Ristoranti
BEFeD Flero
1,7 Km
Pizzeria Ristorante Costa Azzurra
1,9 Km
Self Tavolamica
2,4 Km
Blue Jeans
2,6 Km
Trattoria Naviglio
2,6 Km
Mostra tutto

Caratteristiche

Rif.:
61127130
Piano:
Terra di 2
Totale piani:
2
Box:
1
Camere da letto:
1
Arredamento:
Assente
Mostra tutto
Prezzo Prezzo
€ 189.000
Rata mutuo Rata mutuo
€ 868 / mese
Spese annue Spese annue
€ 2.500
Proponi il tuo prezzoProponi il tuo prezzo

Classe Energetica

A1
A1
A1
A1
A1
A1
A1
A1
A1
EP invernale del fabbricato:
EP estiva del fabbricato:
Anno di costruzione:
2011
Riscaldamento:
Autonomo
Tipo impianto:
A pavimento
Tipo alimentazione:
Altro

Ti interessa visionare l'immobile?

Fissa un appuntamento  Fissa un appuntamento

Richiedi informazioni

* Questi campi sono obbligatori

Calcola il tuo mutuo

Semplice e senza impegno
Anticipo

( % )
Mutuo

( % )

pochi semplici passi

inserisci i tuoi dati
Questionario completato
Grazie per aver richiesto un appuntamento senza impegno con un nostro Consulente del Credito e Assicurativo.

Hai inserito correttamente tutti i dati necessari e a breve riceverai una e-mail con un link da convalidare per inviare i tuoi dati.
Affiliato
Tecnoflero 2.0 Srl
P.zza IV Novembre, 103/A 25020 Flero (BS)

Il nostro staff


  • Massimo Rizzotti
    Affiliato

  • Noemi Bertoli
    Responsabile

  • Mariaelena Saleri
    Affiliata
P.zza IV Novembre, 103/A 25020 Flero (BS)
Zona: Flero-Poncarale
Mostra su mappa
Orari: Dal lunedì al venerdì 09:00 - 12.30 / 14.30 - 19:30; sabato 09:00 -12.30/14.30 - 16.00
Affiliato
Tecnoflero 2.0 Srl
P.zza IV Novembre, 103/A 25020 Flero (BS)

2025 Tecnocasa Franchising S.p.A. - P. IVA 08365160152 - Via Monte Bianco 60/A 20089 Rozzano (MI). Ogni agenzia ha un proprio titolare ed è autonoma. Privacy policy | Policy utilizzo | Cookie policy