Casa indipendente in vendita

Poncarale, Via Fiume
€ 159.000
3 locali 3 locali
138 Mq 138 Mq
1 bagno 1 bagno

Casa indipendente in vendita

Poncarale, Via Fiume

Descrizione annuncio

COSA SAPERE SULLA CASA:

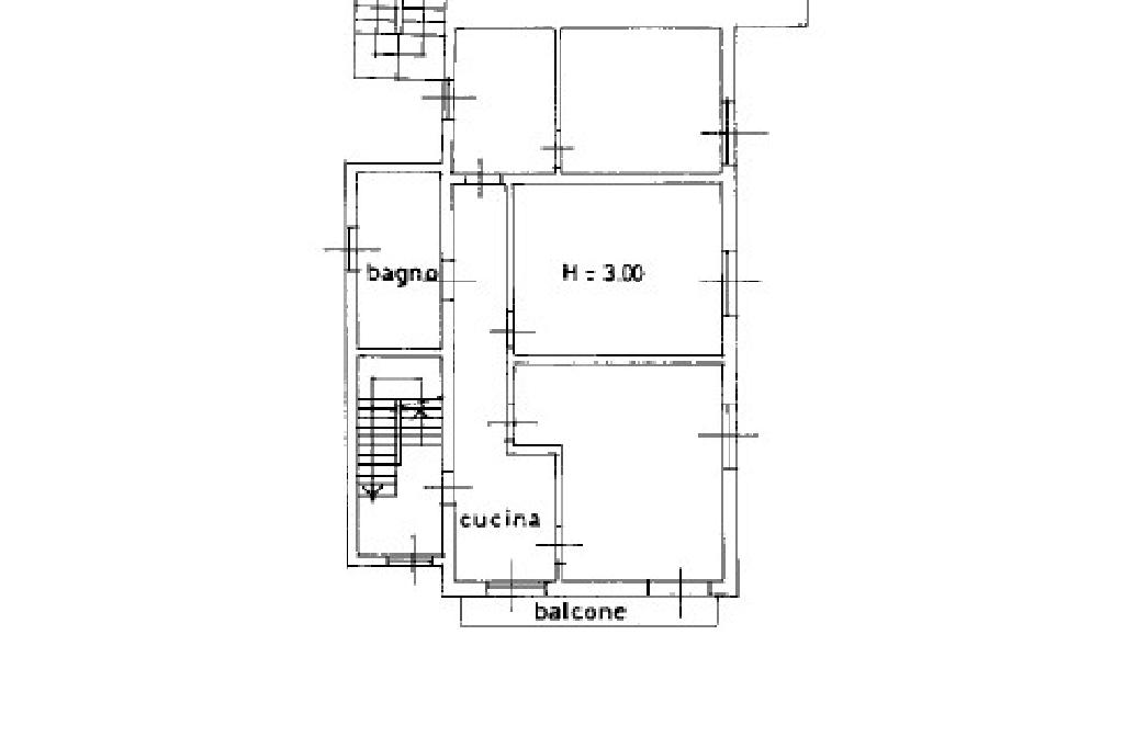
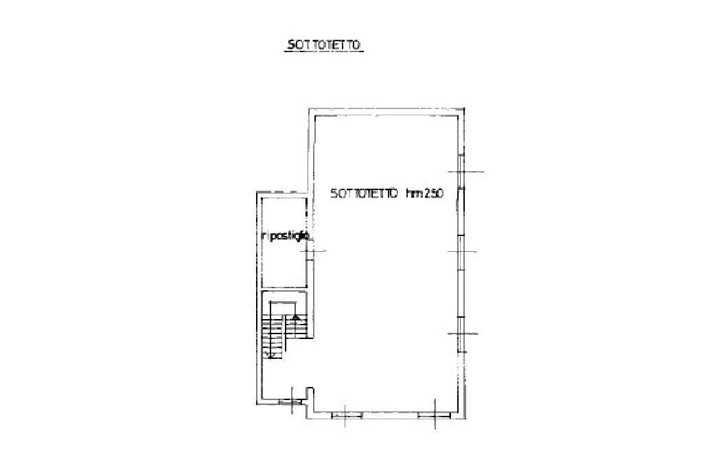
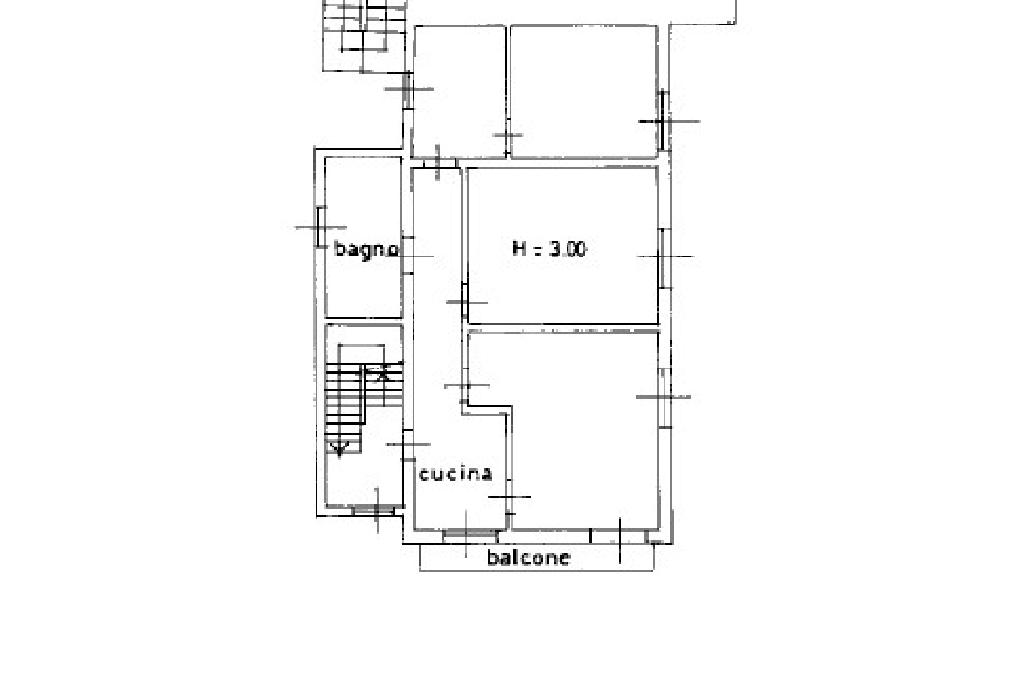
Poncarale - Casa Indipendente - Trilocale - Balconata - Sotto Tetto - Garage Doppio.

PARTICOLARITA' E DESCRIZIONE:

La porta blindata da accesso alla scalinata che conduce al primo piano dove si sviluppa la soluzione.

Il disimpegno distribuisce i vari ambienti.

La cucina ed il soggiorno sono molto luminose grazie alla presenza della porta finestra che affaccia sulla balconata.

Due le camere matrimoniali di cui una dotata di anticamera

Serve la soluzione l'ampio bagno finestrato con doccia.

A completare la soluzione il sottotetto utilizzabile come ulteriore spazio di deposito e l'autorimessa doppia in larghezza.

TECNOLOGIE:

Il riscaldamento è autonomo, termoidraulico tramite caloriferi in ghisa.

Dotato di climatizzazione.

UBICAZIONE E CONTESTO:

Ricordiamo inoltre che il paese di Poncarale offre un servizio autobus il quale collega il comune con i paesi limitrofi ed il centro città.

E' possibile trovare più fermate autobus nel centro del paese ed alcune vicino ai supermercati.

Inoltre, il paese dispone di tutti i principali servizi di cui un cittadino necessita, come poste e banche.

In pieno centro storico possiamo trovare numerosi bar e botteghe, negozi di abbigliamento e farmacie.

Poncarale offre anche servizio scolastico, dall'asilo nido alle scuole elementari.

Affidarsi all'agenzia Tecnocasa significa rivolgere la propria scelta verso un servizio di qualità, svolto da consulenti esperti e preparati, in grado di offrire assistenza completa e altamente professionale. Il nostro punto di forza è lavorare su micro-zone, questo ci permette maggior conoscenza del territorio in cui operiamo.

I nostri servizi:

Consulenza per l'acquisto, la vendita, la locazione e la valutazione di immobili. Consulenza finanziaria specialistica - mutui casa, cessione del quinto, prestiti personali. I nostri consulenti Kiron sono convenzionati con i maggiori istituti del credito, lavorando a supporto dei clienti delle agenzie immobiliari.

Ogni agenzia ha un proprio titolare ed e' autonoma - Le presenti informazioni non costituiscono elemento contrattuale.

Mostra tutto

Nelle vicinanze

Trasporto pubblico Trasporto pubblico
Via Roma 15
Via Roma 15
150 m
Via Roma 8/10
Via Roma 8/10
170 m
Scuole Scuole
Scuola Primaria Gianni Rodari
130 m
Scuola Secondaria di Primo Grado Emiliano Rinaldini
150 m
Scuole
310 m
Scuola dell'Infanzia
380 m
Scuola Primaria
2,5 Km
Negozi Negozi
Daniel Market
220 m
La Forneria
260 m
Keys
2,4 Km
Bar Bar
Effebar
3,0 Km
Ristoranti Ristoranti
La Rocca
70 m
Hostaria del Montenetto
1,2 Km
BEFeD Flero
1,2 Km
Primo Piano
2,4 Km
Ristoranti
2,5 Km
Mostra tutto

Caratteristiche

Rif.:
61113144
Piano:
1 di 2 (Piano medio)
Box:
2
Balconi:
1
Camere da letto:
2
Arredamento:
Assente
Mostra tutto
Prezzo Prezzo
€ 159.000
Rata mutuo Rata mutuo
€ 706 / mese
Spese annue Spese annue
€ 0
Proponi il tuo prezzoProponi il tuo prezzo
Immobile valutato con TecnoValore

Classe Energetica

Questo immobile è esente da classe energetica
Anno di costruzione:
1967
Riscaldamento:
Autonomo
Tipo impianto:
A radiatori
Tipo alimentazione:
Metano

Ti interessa visionare l'immobile?

Fissa un appuntamento  Fissa un appuntamento

Richiedi informazioni

* Questi campi sono obbligatori

Calcola il tuo mutuo

Semplice e senza impegno
Anticipo

( % )
Mutuo

( % )

pochi semplici passi

inserisci i tuoi dati
Questionario completato
Grazie per aver richiesto un appuntamento senza impegno con un nostro Consulente del Credito e Assicurativo.

Hai inserito correttamente tutti i dati necessari e a breve riceverai una e-mail con un link da convalidare per inviare i tuoi dati.
Affiliato
Tecnoflero 2.0 Srl
P.zza IV Novembre, 103/A 25020 Flero (BS)

Il nostro staff


  • Massimo Rizzotti
    Affiliato

  • Noemi Bertoli
    Responsabile

  • Mariaelena Saleri
    Affiliata
P.zza IV Novembre, 103/A 25020 Flero (BS)
Zona: Flero-Poncarale
Mostra su mappa
Orari: Dal lunedì al venerdì 09:00 - 12.30 / 14.30 - 19:30; sabato 09:00 -12.30/14.30 - 16.00
Affiliato
Tecnoflero 2.0 Srl
P.zza IV Novembre, 103/A 25020 Flero (BS)

2025 Tecnocasa Franchising S.p.A. - P. IVA 08365160152 - Via Monte Bianco 60/A 20089 Rozzano (MI). Ogni agenzia ha un proprio titolare ed è autonoma. Privacy policy | Policy utilizzo | Cookie policy